- Woonoppervlakte
- Circa 106 m²
- Perceeloppervlakte
- Circa 213 m²
- Bouwjaar
- Gebouwd in 2011
- Aantal kamers
- 7 kamers (4 slaapkamers)
Aan de rand van Oldemarkt staat deze keurige hoekwoning met een prachtige ligging aan vaarwater en een eigen aanlegsteiger. De woning beschikt over een tuingerichte woonkamer met open keuken, 4 slaapkamers en een nette badkamer op de verdieping. De achtertuin ligt op het oosten, is via de zijtuin bereikbaar en biedt vrij uitzicht over de landerijen. Aan de voorzijde bevindt zich een houten berging.
INDELING WONING:
Entree met meterkast, trapopgang en toiletruimte met wandcloset en fontein. Ruime, tuingerichte woonkamer met tuindeur naar het terras, een praktische trappenkast en toegang tot de achtertuin met eigen steiger. Aan de voorzijde bevindt zich de moderne keuken, voorzien van diverse inbouwapparatuur.
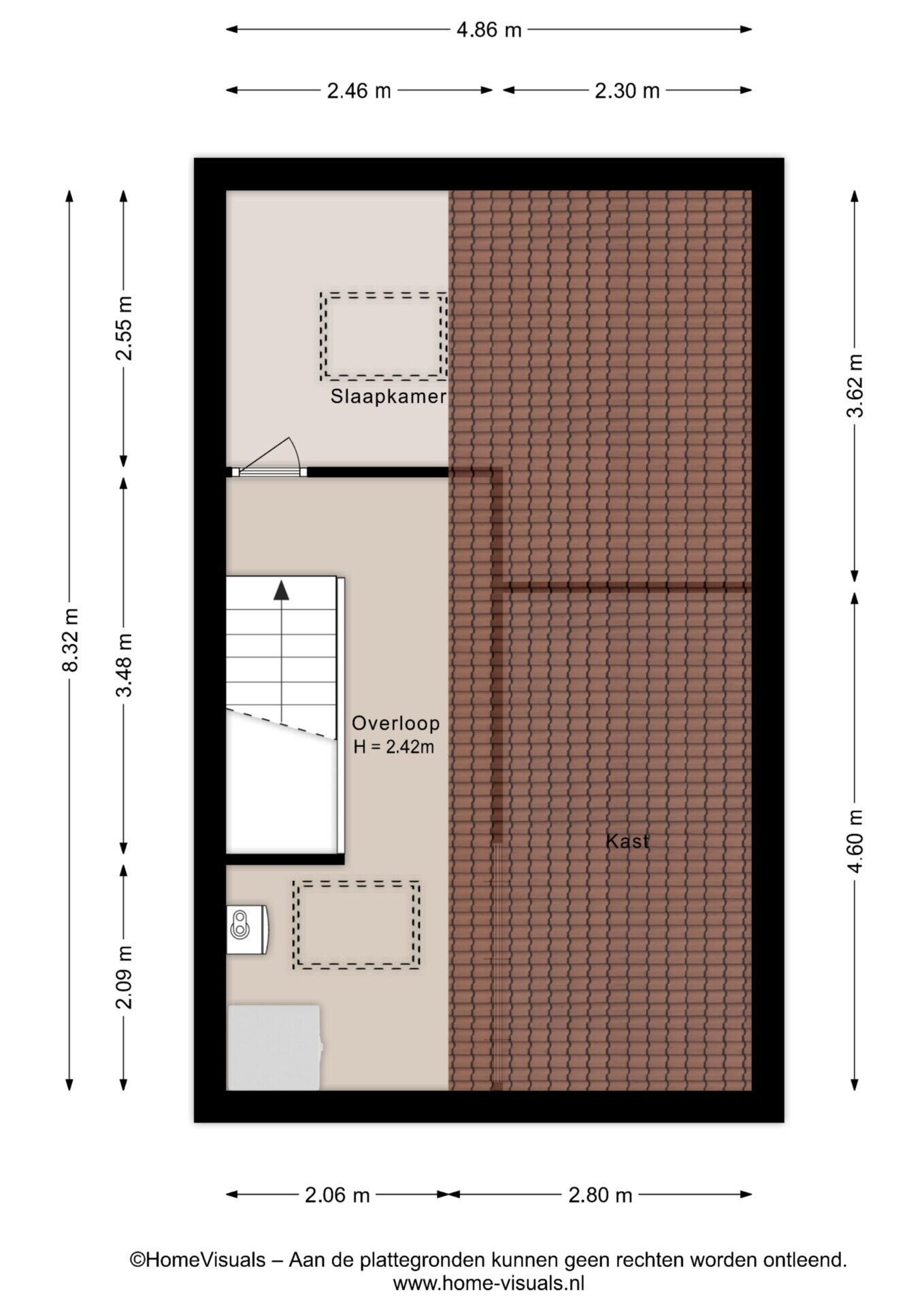
1e verdieping: overloop, drie slaapkamers en een moderne badkamer met regendouche, wastafel en wandcloset.
Via een vaste trap is de zolderverdieping bereikbaar met de vierde slaapkamer, voorzien van een groot dakraam. Langs de zijkant zijn vaste kasten gerealiseerd voor extra bergruimte. Hier bevinden zich tevens de cv-opstelling en aansluitingen voor witgoed.
ALGEMEEN:
De woning is gebouwd in 2011, volledig voorzien van dubbele beglazing HR++, wordt verwarmd middels een Intergas cv-ketel en heeft een energielabel A. De voortuin is onderhoudsvriendelijk aangelegd en biedt toegang tot de vrijstaande houten berging. De achtertuin grenst aan het water een heerlijke plek om te genieten van het uitzicht of om uw eigen boot aan te leggen. Aan de voorzijde zijn voldoende openbare parkeerplaatsen en er is ruimte om op eigen terrein een parkeerplaats te realiseren.
De woning ligt in de kleinschalige, kindvriendelijke woonwijk Mallegat, op korte afstand van winkels en scholen in Oldemarkt. De straat is niet doorgaand en er zijn diverse speelvelden in de buurt en in de winter ligt de ijsbaan praktisch om de hoek.
Oldemarkt heeft een actief verenigingsleven en een centrale ligging op circa 15 minuten rijden van Steenwijk, Wolvega, Emmeloord en de A6 richting de Randstad.
Overdracht
- Vraagprijs
- € 339.000 k.k.
- Status
- Beschikbaar
- Aanvaarding
- In overleg
Bouw
- Object type
- Eengezinswoning, hoekwoning
- Soort bouw
- Bestaande bouw
- Bouwjaar
- 2011
- Soort dak
- Lessenaardak bedekt met pannen
Oppervlakte en inhoud
- Woonoppervlakte
- 106 m²
- Perceeloppervlakte
- 213 m²
- Inhoud
- 398 m³
- Externe bergruimte
- 8 m²
Indeling
- Aantal kamers
- 7 kamers (4 slaapkamers)
- Aantal badkamers
- 1 badkamer
- Badkamervoorzieningen
- Toilet, douche, wastafel
- Aantal woonlagen
- 3 woonlagen
- Voorzieningen
- Mechanische ventilatie, dakraam
Energie
- Energielabel
- A
- Energielabel registratie
- 03-10-2025
- Isolatie
- Dakisolatie, muurisolatie, vloerisolatie, dubbel glas
- Verwarming
- Cv-ketel
- Warm water
- Cv-ketel
- Cv ketel
- Intergas combiketel gas gestookt uit 2011 (eigendom)
Buitenruimte
- Ligging
- Aan rustige weg, vrij uitzicht, aan vaarwater
- Tuin
- Achtertuin, voortuin, zijtuin
- Afmetingen achtertuin
- 66 m² (11 meter diep en 6 meter breed)
- ligging tuin
- Gelegen op het oosten en bereikbaar via achterom
Bergruimte
- Schuur / berging
- Vrijstaande houten berging
- Voorzieningen
- Voorzien van elektra
Garage
- Soort garage
- Geen garage
Parkeergelegenheid
- Soort parkeergelegenheid
- Openbaar parkeren
Energieverbruik in Oldemarkt
Energielabel deze woning
Energielabel A
Publicatie energielabel: 03-10-2025
Stroomverbruik per jaar
(Gemiddelde hoekwoning in Oldemarkt)
Gasverbruik per jaar
(Gemiddelde hoekwoning in Oldemarkt)
* Cijfers zijn afkomstig van het CBS en bedoeld als indicatie en kunnen verschillen voor deze woning
Indicatie hypotheeklasten
Eigen inleg:
Spaargeld / overwaarde
Rente:
Laagste 10-jaars rente
Laagste 10-jaars rente
2,73% - Centraal Beheer Groen... - NHG
3% - Centraal Beheer Groen Lee... - 80%
Laagste 20-jaars rente
3,18% - Argenta Groen Hypothee... - NHG
3,39% - Argenta Groen Hypothee... - 80%
Laagste 30-jaars rente
3,35% - Argenta Groen Hypothee... - NHG
3,56% - Argenta Groen Hypothee... - 80%
Hypotheek:
Bruto maandlasten: € 0 p/m
Netto maandlasten: € 0 p/m
Hoe berekenen we dit?
Het rentepercentage is gebaseerd op de laagste 10 jaars vaste rente voor één hypotheekdeel. De vermelde rente (2.73% met NHG) is gecontroleerd op 18-11-2025. Deze berekening is gebaseerd op een annuïteitenhypotheek die volledig wordt afgelost, waarbij de maandlasten gedurende de gehele looptijd gelijk blijven. De werkelijke rente en netto maandlasten kunnen variëren, afhankelijk van uw persoonlijke situatie en de hypotheekverstrekker. Raadpleeg een financieel adviseur voor een nauwkeurige berekening en advies. Aan deze berekening kunnen geen rechten worden ontleend; het dient enkel als indicatie.
Documentatie
Kadastrale kaart
Leefomgeving
Brochure
Plattegronden PDF
BAG uittreksel
WOZ waarderapport
Bekijk onze website
Bezichtiging
Bod uitbrengen
Waardebepaling
Zoekopdracht
Alles downloaden
Zonnegrenzen bekijken
Inwoners in Oldemarkt
Cijfers voor postcodegebied 8375
- Totaal aantal inwoners
- 2560 inwoners
- Mannen
- 51%
- Vrouwen
- 49%
Inwoners in Oldemarkt
Cijfers voor postcodegebied 8375
- tot 15 jaar
- 15%
- 15 tot 25 jaar
- 11%
- 25 tot 35 jaar
- 20%
- 45 tot 65 jaar
- 30%
- 65 en ouder
- 24%
Huishoudens in Oldemarkt
Cijfers voor postcodegebied 8375
- Eenpersoons zonder kinderen
- 31%
- Meerpersoons zonder kinderen
- 38%
- Huishoudens zonder kinderen
- 69%
Huishoudens in Oldemarkt
Cijfers voor postcodegebied 8375
- Huishoudens met één kind
- 5%
- Huishoudens met meerdere kinderen
- 26%
- Huishoudens met kinderen
- 31%
Woningen in Oldemarkt
Cijfers voor postcodegebied 8375
- Woningen voor 1945
- 17%
- Woningen tussen 1945 en 1965
- 9%
- Woningen tussen 1965 en 1975
- 13%
- Woningen tussen 1975 en 1985
- 20%
- Woningen tussen 1985 en 1995
- 13%
Woningen in Oldemarkt
Cijfers voor postcodegebied 8375
- Woningen tussen 1995 en 2005
- 22%
- Woningen tussen 2005 en 2015
- 5%
- Woningen na 2015
- 1%
- Huurwoningen
- 20%
- Koopwoningen
- 80%
Overige in Oldemarkt
Cijfers voor postcodegebied 8375
- Gemiddelde WOZ waarde
- € 203.000,-
- Personen onder de 65 met uitkering
- 5%
Overige in Oldemarkt
Cijfers voor postcodegebied 8375
- Adressen per km²
- 333
- Stedelijkheid (schaal 1 op 5)
- 20%
Korte feiten over Oldemarkt
Oldemarkt (Stellingwerfs: Oldemaark) is een kleine dorpskern in de gemeente Steenwijkerland in de provincie Overijssel.
Hét makelaarshuis van Steenwijk
Op zoek naar een makelaar?
Een huis verkopen of kopen is een belangrijke beslissing in het leven. Het is essentieel om deskundig en objectief advies te krijgen. We brengen in kaart wat u belangrijk vindt en welke wensen u heeft. Een open gesprek vormt de basis voor onze aanpak. Luisteren is een cruciaal onderdeel van ons vak! Wij taxeren de woning en adviseren u over de te hanteren vraagprijs. In overleg met u bepalen we het verkooptraject, inventariseren we de sterke en mindere punten van de woning en stellen we aanbiedingsteksten op. Nadat de fotopresentatie is gemaakt, kan de verkoop daadwerkelijk beginnen. Terwijl wij uw woning verkopen, kunt u zich richten op de volgende stap in uw leven. Aan ons de taak om een geschikte koper voor uw woning te vinden.
HetMakelaarshuis krijgt zijn meeste klanten door aanbevelingen. Waarom? Omdat wij de meest betrouwbare dienstverlening bieden aan onze relaties en zij ons waarderen om onze kennis, bevlogenheid, bereikbaarheid en de zorg en aandacht die wij aan hen besteden.
Bel ons vandaag nog en ervaar het zelf.
Nieuwste reviews
-
Onnastraat 16
We zijn zeer tevreden vanaf het begin tot het einde uitstekende begeleiding werden prima van de voortgang op hoogte gehouden en waren zeer c...
-
Onnastraat 16
We zijn zeer tevreden vanaf het begin tot het einde uitstekende begeleiding werden prima van de voortgang op hoogte gehouden en waren zeer c...
-
Onnastraat 16
We zijn zeer tevreden vanaf het begin tot het einde uitstekende begeleiding werden prima van de voortgang op hoogte gehouden en waren zeer c...